Nailsea, North Somerset Nailsea, North Somerset

Nailsea, North Somerset

3 bedroom Terraced House for sale

£310,000

  • 3 bedroom
  • 2 bathroom
  • 1 reception

Key Features

  • • Semi-Detached Three-Bedroom House
  • • Close to Local Schools and Amenities
  • • Within Walking Distance of Town Center
  • • Pleasant Private Garden
  • • Bathroom with Seperate Shower and Bath
  • • Ensuite Shower Room

Description

A spacious three bedroom dormer bungalow with the benefit of an en-suite to the upper floor bedroom and a bathroom with separate shower cubicle and bath, a south facing garden, a garage and parking giving level access to the rear of the property. Viewing is highly recommended. EPC: B

Details

Entrance

uPVC entrance door with obscured glazing leading into the entrance hall.

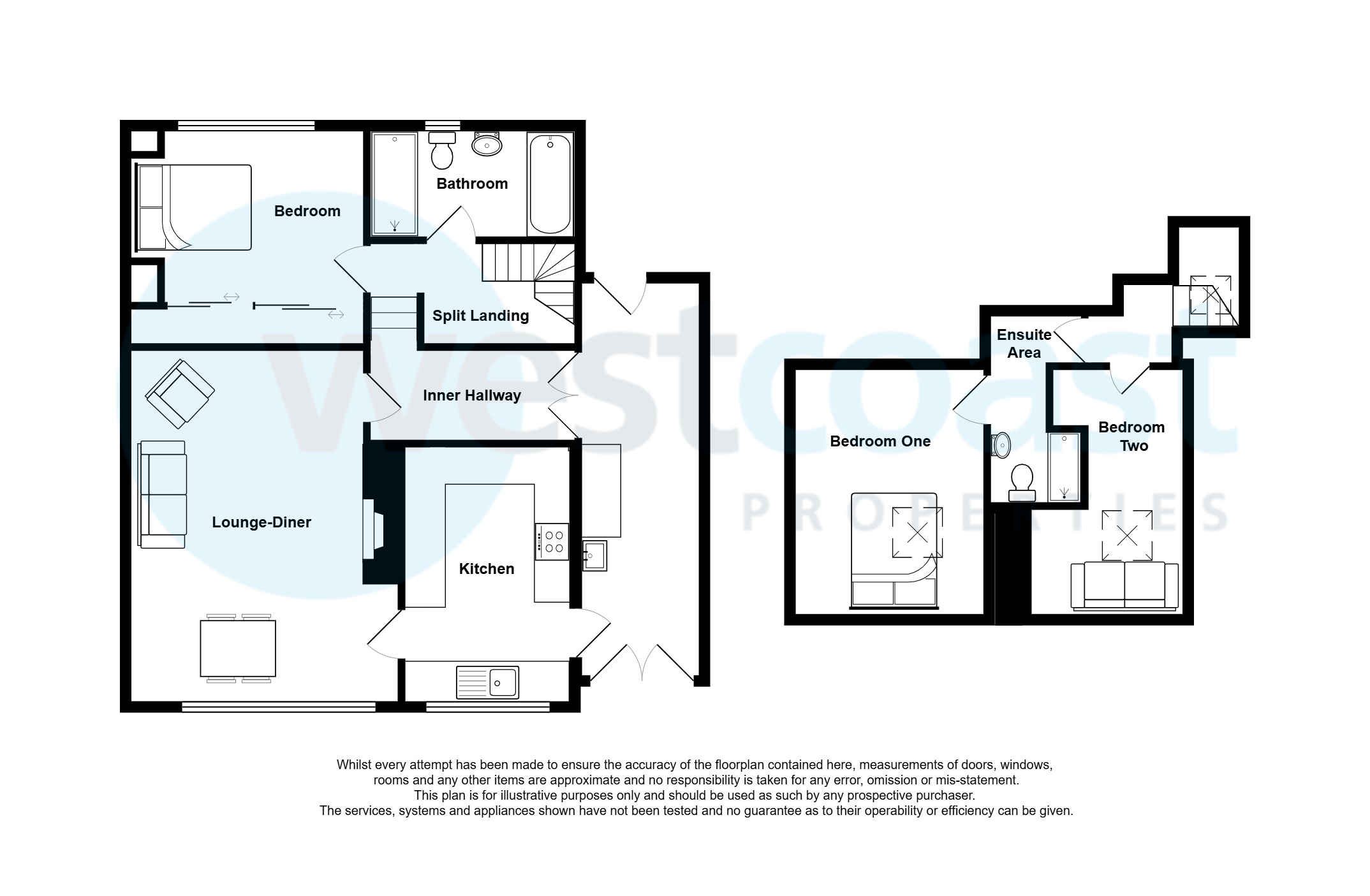
Entrance Hall (6.147m x 1.832m)

Partly in use as a utility area with space for fridge freezer, chest freezer and tumble dryer, wall mounted sink, space and plumbing for washing machine, eyeline and base units with rolltop worksurface over, tiled splashbacks, loft access, uPVC double glazed double doors leading into the inner hallway, and uPVC partially glazed door accessing the garden and tile effect vinyl floor covering.

Kitchen (2.569m x 4.220m)

Double glazed picture window overlooking the front aspect, door into the lounge-diner, inset stainless steel bowl and drainer with mixer tap over, tiled splashbacks, range of drawers, eyeline and base units with wood effect rolltop worksurfaces over, integrated double eyeline oven, space for fridge freezer, space and plumbing for dishwasher, integrated ceramic hob with granite splashback and extractor hood over, wall mounted Worcester boiler, and tile effect vinyl floor covering.

Lounge-Diner (4.159m x 5.483m)

Double glazed picture window overlooking the front aspect, double radiator, television point, telephone point, wood burning stove in a brick surround with wooden mantle and tiled hearth, and door leading into the inner hallway.

Inner Hallway (3.184m x 1.328m)

Double radiator, stairs rising to a split landing.

Split Landing (0.759m x 1.968m)

Doors to the bathroom and bedroom one and stair rising to the second floor.

Bedroom One (3.637m x 3.336m)

Double glazed window overlooking the rear aspect, radiator, range of fitted wardrobes providing hanging and storage solutions, television point, and wall points.

Bathroom (1.658m x 3.123m)

Fully tiled, with double glazed window overlooking the rear aspect, four piece suite comprising panelled bath with mixer tap and hand held shower attachment over, wash hand basin on pedestal with mixer tap over, close-coupled WC and double shower cubicle housing the thermostatic shower, extractor fan, and tile effect vinyl floor covering.

Attic Conversion Landing (0.785m x 1.237m)

Velux window.

Attic Conversion Room One (3.381m x 3.845m)

Double glazed Velux window, and hanging rail.

Attic Conversion Room Two (2.866m x 2.366m)

Currently used as a study with a double glazed Velux window, and double radiator.

Attic Ensuite (2.075m x 1.951m)

Three-piece suite comprising wall mounted wash hand basin with mixer tap over, close coupled WC and shower cubicle housing the Triton electric shower, storage in the eaves and door into bedroom.

Rear Garden

Mainly laid to gravel with borders established with various shrubs and plants, bin store, greenhouse, access to garage via rear access gate as well as integrated store room with window to the front and fuse board.

Garage (2.480m x 4.989)

Up and over door, power, light, storage in the rafters and with parking in front.

Material Information

The property is freehold Council Tax band C, charged at £2,030.10 for the period 2025/2026 The property further benefits from solar panels which are owned and were installed approx. 2 years ago

Additional Information

  • Council Tax Band: C
  • Tenure: Freehold
  • All Else: Ask Agent

Location


Floorplan

Floorplan

EPC

EPC for Nailsea, North Somerset

Book a viewing 01275 857 773
Add to Shortlist
Remove from Shortlist
Share

Similar Properties

Nailsea, Bristol, Somerset
For Sale

Nailsea, Bristol, Somerset

1 Bed Property For Sale
Guide price £112,500
Nailsea, North Somerset
Under Offer

Nailsea, North Somerset

4 Bed Detached house Under Offer
Guide price £660,000
Nailsea, North Somerset
For Sale

Nailsea, North Somerset

3 Bed Bungalow For Sale
Guide price £385,000