Almondsbury, Bristol Almondsbury, Bristol

Almondsbury, Bristol

4 bedroom Detached house for sale

£625,000

  • 4 bedroom
  • 3 bathroom
  • 3 reception

Key Features

  • • Detached house
  • • Four double bedrooms
  • • Two ensuites
  • • WC and study
  • • Double garage
  • • Parking for multiple vehicles
  • • Great location for motorway links
  • • Fitted water softener system
  • • NO ONWARD CHAIN

Description

Set within a desirable residential setting in Almondsbury, this impressive four-bedroom detached home offers generous living accommodation arranged over two floors complete with multiple parking and a double garage and offered with no onward chain.

Details

Property Description

The property presents a modern and welcoming feel throughout, enhanced by excellent natural light and well planned spaces ideal for family living. A spacious entrance hallway leads to multiple reception areas, a study, and a well equipped kitchen. Four double bedrooms, two with en-suite facilities, complete the first floor. Outside, the home benefits from extensive parking, a double garage with power and EV charging point, and a private rear garden with decking and lawn. Almondsbury is a charming countryside village that beautifully combines rural character with superb transport convenience. Ideally positioned just minutes from the M32, M4 and M5, and only six miles from Bristol city centre, Almondsbury provides the perfect balance—enjoying peaceful village living with outstanding access to everything Bristol has to offer.

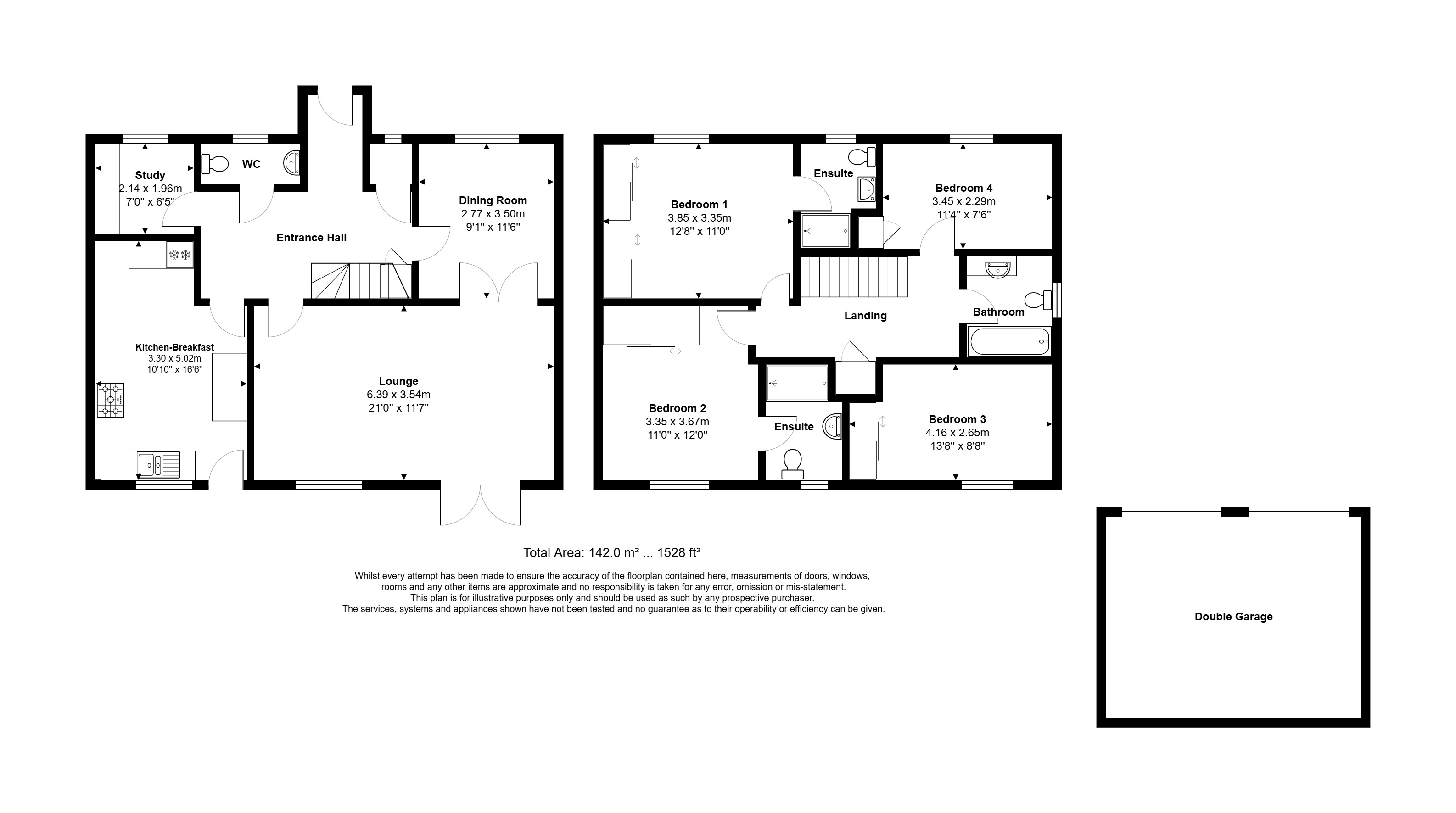
Ground Floor

A composite front door opens into a spacious entrance hallway with wood flooring, a radiator, alarm panel and stairs rising to the first floor. There is an under stairs storage cupboard with shelving and lighting, a additional storage cupboard with key safe. The WC features a low level WC, pedestal wash hand basin with tiled splashback, wall mounted mirror and radiator. The kitchen includes a window and door to the rear garden, a wide range of wall and base units, five ring gas hob, electric double oven, fitted Miele microwave, integrated fridge freezer, Bosch washing machine and dishwasher, stainless steel extractor fan, 1.5 bowl sink and drainer, breakfast bar with storage cupboards and wine fridge, hidden sockets and cupboard housing a wall mounted boiler. The lounge benefits from a window and french doors to the rear decked area, wood flooring and two radiators. Double doors lead into the dining room which has a window to front and radiator. A separate study offers a window to the front, built in cupboards, desk area and drawer unit—ideal for remote working.

First Floor

The first floor offers four double bedrooms, two with ensuite facilities. Bedroom one features a window to the front, radiator, two double built in wardrobes with mirrored sliding doors and a fitted vanity unit with lights, mirror and drawer storage. The ensuite includes an obscure window, tiled shower, WC, storage unit with integrated wash hand basin, shaver socket, spotlights, extractor fan and tiled floor. Bedroom two includes a rear window, built in double wardrobe with sliding doors and a radiator. The ensuite offers an obscure window, fully tiled shower enclosure, low level WC, storage unit with wash hand basin and tiled splashback, shaver point, built in mirror, tiled flooring and extractor fan. Bedroom three has a double glazed window to the rear and a built in double wardrobe with sliding doors. Bedroom four has a window to the front, radiator and built in cupboard. The family bathroom features an obscure window to the side, panel bath with shower and tiled splashback, built in mirror, WC, radiator, storage unit with wash hand basin and tiled splashback, shaver point and extractor fan. The landing provides loft access and houses the airing cupboard.

Outside

The front garden is finished with stone chippings and offers parking for up to six vehicles secured by double electric gates, leading to a detached double garage with power, lighting, two up and over doors and a wall mounted electric car charging point. A side gate provides access to the rear. The rear garden is mainly laid to lawn, enclosed by fencing and enhanced by a decked seating area, outside tap and wall lighting. A composite door from the garage also opens directly to the garden.

Material Information

The property features all double glazed windows , gas central heating with radiators in all principal rooms, wood flooring throughout the ground floor and chrome switches throughout. Tax Band: F (£3,455.20 for tax year 2025/2026) Tenure: Freehold EPC Rating: C

Additional Information

  • Council Tax Band: F
  • Tenure: Freehold
  • Electricity: Mains Supply
  • All Else: Ask Agent

Location


Floorplan

Floorplan

EPC

EPC for Almondsbury, Bristol

Book a viewing 01179 697 373
Add to Shortlist
Remove from Shortlist
Share

Similar Properties

Bradley Stoke, Bristol
For Sale

Bradley Stoke, Bristol

2 Bed Property For Sale
Guide price £300,000
Bradley Stoke, Bristol
For Sale

Bradley Stoke, Bristol

4 Bed Detached house For Sale
Guide price £440,000